



Domusa JAKA HFD 20 CONDENS OD oliekondenseringskedel er specifikt designet til udendørs installation og tilbyder en praktisk og effektiv løsning til boliger, hvor der er begrænset indendørs plads. Med en nyttig effekt på 19,1 kW ved 80°C/60°C kombinerer denne model avanceret kondenseringsteknologi, materialer af høj kvalitet og et design, der er tænkt til at modstå barske vejrforhold. Dens overlegne ydeevne og energicertificering i klasse A gør den til en fremragende mulighed for dem, der søger effektivitet, besparelser og bæredygtighed.
Kedlen udnytter kondenseringseffekten til at genvinde varmen fra forbrændingsgasserne og opnår effektivitet på over 103% af den lavere brændværdi (LHV). Denne proces reducerer brændstofforbruget markant og opnår besparelser på op til 30% sammenlignet med traditionelle kedler. Dens høje effektivitet er certificeret af den europæiske ErP-direktiv, hvilket garanterer en lav miljøpåvirkning og lavere driftsomkostninger.
Designet af Domusa JAKA HFD 20 CONDENS OD er optimeret til at modstå barske klimaforhold. Dens tætte kabinetter er belagt med EPOXY-belægning, hvilket giver en holdbar beskyttelse mod fugt, regn og temperaturudsving. Derudover sikrer dens tæthed en sikker og effektiv drift i enhver indstilling.
Kedlens krop er lavet af støbejern, et materiale, der sikrer en lang levetid selv under krævende forhold. Den rustfri stål kondensator sikrer en høj termisk ydeevne, mens det modulære design letter vedligeholdelse og forlænger udstyrets holdbarhed.
Takket være dens tætte brænder og høj kvalitets lydisolering tilbyder kedlen en ekstremt støjsvag drift, der giver komfort både indendørs og udendørs.
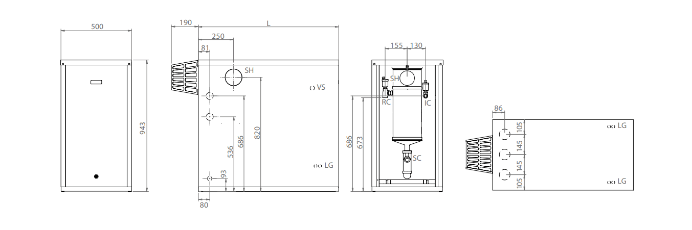
JAKA HFD 20 CONDENS OD modellen er designet til enkel og alsidig installation. Den kan tilpasses forskellige varmesystemkonfigurationer og tillader udsugning af gasser gennem polypropylenrør, hvilket forenkler monteringen og reducerer de tilknyttede omkostninger. Derudover inkluderer den et komplet og brugervenligt kontrolpanel med funktioner som frosttermostat, termo-hydrometer og lyskontakt til tænd/sluk.
Domusa JAKA HFD 20 CONDENS OD kedlen er en ideel løsning til enfamiliehuse og lokaler, der har brug for at optimere indendørs plads ved at installere opvarmningsudstyr udendørs. Dens robuste design, energieffektivitet og lave vedligeholdelse gør den til et pålideligt valg til krævende klimaer og brugere, der prioriterer besparelser og bæredygtighed.
Med Domusa JAKA HFD 20 CONDENS OD nyder brugeren en robust, effektiv kedel tilpasset moderne behov, der sikrer termisk komfort og en varig investering.